로그인

간편회원은 볼 수 없습니다.
회원정보를 입력해주세요.

회원정보 수정
신고하기

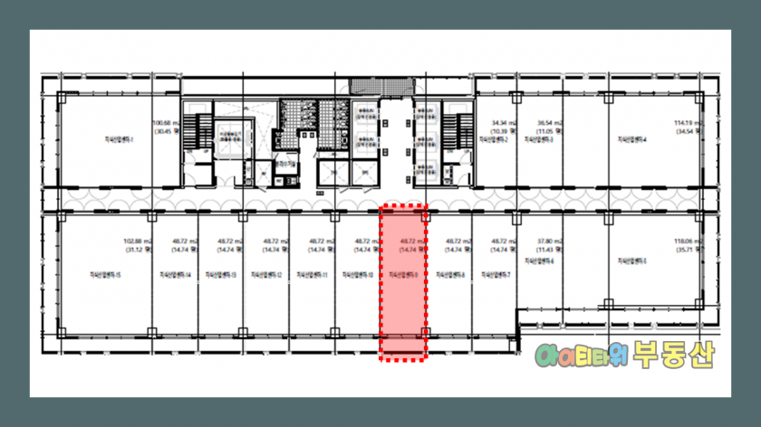
매물 번호 : 11572

상세설명

가양더리브 아너비즈타워 지식산업센터 분양권 매매 마이너스 피 

 

■ 사업개요

  • 사업명 : 가양역아너비즈타워지식산업센터신축공사
  • 대지위치 : 서울특별시강서구등촌동629-1 외5필지
  • 지역지구 : 도시지역, 준공업지역, 일반미관지구
  • 대지면적 : 3,792.50㎡(1,147.23평)
  • 도로현황 : 서측20M,북측30M
  • 건축면적 : 1,908.21㎡(577.23평)
  • 연면적 : 32,375.42㎡(9,793.56평)
  • 용도 : 지식산업센터, 근린생활시설
  • 규모 : 지하5층~ 지상15층
  • 주차 : 201대(법정122대의164%)
  • 승강기 : 인승용5대, 화물용1대, 에스컬레이터1기
  • 호실수 : 지식산업센터: 241호실
  • 근린생활시설: 49호실

 

■ 입지환경

  • 9호선골드라인‘가양역’도보3분초역세권
  • 가양~신논현약20분, 강남권 쾌속진입
  • 지하철9호선,인천공항철도,올림픽대로,강변북로,광명-서울고속도로(예정)
  • 원종-홍대서부광역철도(예정),김포공항,인천공항고속도로등 쾌적의광역교통망!!

 

■ 배후수요

  • 서울시자치구중두번째로많은인구수
  • 당사업지직주근접배후수요약230,000명
  • 1) 서울에서두번째로인구수가많은강서구(581,909명)
  • 2) DMC 첨단산업단지550여개기업근로자약40,000명
  • + 마곡지구종사자약160,000명
  • + 덕은지구상주인구약32,000명
  • 3) 9호선가양역,증미역배후1㎞내아파트,오피스텔약25,000세대


■ 특.장점

  • 더블초역세권
  • 9호선골드라인, 가양역-증미역3분거리의초역세권에입지
  • 한강View
  • 탁트인한강을조망할수있는View를선사합니다. (일부층)
  • New York Style
  • 감각적인뉴욕스타일의아치형창과브릭스타일적용(저층부)
  • 섹션오피스
  • 33m2(10평)대의소형구성으로부담없이~, 크게필요할땐여러호실로필요만큼~
  • Duplex 구조
  • REAL 2개층의,REAL 복층구조로탁월한공간감과개방감을극대화합니다. (일부층)

 

감각적이고 트렌디한
뉴욕 감성 오피스를 품다

감각적인 뉴욕 스타일 디자인
탁 트인 듀플렉스, 컴팩트한 섹션 오피스,
아치형 창과 브릭 등 뉴욕 감성의 디자인(일부층)

고품격 커뮤니티와 한강조망
옥상정원, 업무지원시설 등 고품격 커뮤니티와
탁 트인 한강 조망을 품은 꿈의 사옥 실현(일부층)

비즈니스 클러스터의
새로운 중심으로 떠오르다

성공 시너지를 높이는 입지
마곡, 상암DMC, 여의도를 연결하는
서울 비즈니스 클러스터의 중심
투자대세 강서구의 새중심
빠른 변화와 발전으로 향후 가치상승이 기대되는
강서구 핵심 입지

가양역 더리브 아너비즈타워 지식산업센터

지금 이순간이 부동산 매입을 가장 가성비 높게 할 수 있는 그 순간이다.

by. 지산인

담당자

010-8541-4121
glad1204
연락처를 남겨주시면 연락드리겠습니다.
개인정보 수집이용 동의 [보기]
  • 자료가 없습니다.
  • 자료가 없습니다.

인근 매물